Haynt Walk, Wimbledon Chase, SW20 9NX
homeBungalow
bed1 Bedroom
bathtub1 Bathroom
£495,995

Key Features

  • Unique One Bedroom Bungalow
  • Beautifully Presented and Proportioned
  • Open-Plan Reception/Dining Area
  • Fully-Fitted Kitchen and Bathroom
  • Huge Potential to Extend (STPP)
  • Lovely Peaceful Rear Garden
  • Private Off-Street Parking
  • Super-Convenient Location
  • Ideal First-Time Buy or Investment
  • No Chain!

Summary

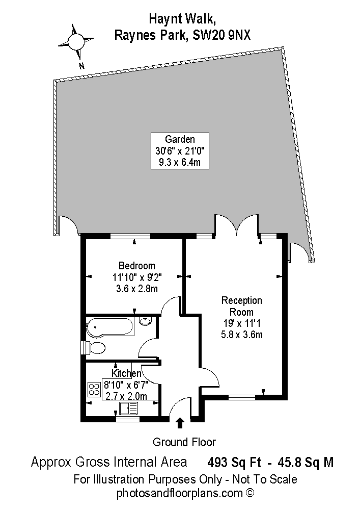
We are delighted to offer for sale this beautifully presented, double-fronted, unique detached bungalow, with huge potential to extend (subject to planning permission) featuring one double bedroom, lovely open-plan living and dining area, excellent fully-fitted kitchen and bathroom, with wooden floors throughout and French doors leading to the idyllic mature rear garden. There is also a large, fully-boarded loft area for additional storage.
This charming, peaceful, freefold property is superbly located at the end of a private driveway and with a large exclusive forecourt area with parking for multiple vehicles, a short walk from Wimbledon Chase station and village centre.
Ideal first-time buy or investment opportunity.

Location

Haynt Walk is an enduringly popular residential street with easy access to Wimbledon Chase station and village centre with its impressive array of amenities, including award-winning state and independent schools, shops, and fine cosmopolitan eateries. Transport links are close and excellent with South Merton overground, Morden Underground (Northern Line) and the Tramlink a short walk away, and great bus services too. Raynes Park, Wimbledon and Morden town centres are also nearby.

Additional Information

Tenure: Freehold

Council tax band: D

For further information on this property please call 020 85430074 or e-mail [email protected]

EPC Graph

Interested in This Property?

020 85430074

[email protected]

Request a Viewing

Share this property:

Rightmove ZooplaOmbudsmanTSIDPSCMP BroadbandUK logo